Casa indipendente in vendita

Montechiaro D'Asti, Via Mairano
€ 89.000
15 locali 15 locali
500 Mq 500 Mq
4 bagni 4 bagni

Casa indipendente in vendita

Montechiaro D'Asti, Via Mairano

Descrizione annuncio

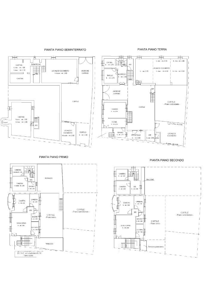
L’immobile è una plurifamiliare di quattro alloggi ed è ideale come investimento per agriturismo.

La casa si trova a Montechiaro d’Asti, comodo ai principali servizi, e a 15 minuti da Asti. Il Cortile è privato e di circa 300 mq, posto su due terrazzamenti diversi. Il fabbricato è stato costruito negli anni 70 è libero su tre lati.

La superfice dell’immobile è di circa 100 mq per ogni piano. L’ingresso carraio da accesso al primo alloggio bilocale al piano terra posto sulla sinistra e al cortile privato. L’ingresso pedonale è un vano scala che disimpegna gli altri tre alloggi, il bilocale al piano terra potrebbe essere utilizzato come studio o anche negozio, mentre gli alloggi al piano primo e piano secondo sono dei quattro locali dotati di terrazzi.

Tettoie e magazzini nel cortile privato sono compresi e possono essere utilizzati in diversi modi, anche per ampliamento delle parti abitative.

Le condizioni interne presentano originali rispetto alla costruzione degli anni 70, ma ancora in discreto stato. Sono presenti gli allacciamenti di luce, acqua e delle fognature. Vista l’ampia metratura è possibile creare più unità abitative.

Mostra tutto

Nelle vicinanze

Trasporto pubblico Trasporto pubblico
Montechiaro
Montechiaro
250 m
Montechiaro (Stazione)
Montechiaro (Stazione)
1,0 Km
Scuole Scuole
Scuola elementare
230 m
Farmacia Farmacia
Farmacia
140 m
Negozi Negozi
F.lli Panzini
240 m
Carrefour Express
1,3 Km
Negozio Villa
1,8 Km
Ristoranti Ristoranti
Tre Colli
80 m
Cascina San Nazario
1,6 Km
Il chicco di cafè
3,0 Km
Mostra tutto

Caratteristiche

Rif.:
61191031
Piano:
Su più livelli
Balconi:
4
Terrazzi:
1
Camere da letto:
10
Arredamento:
Assente
Mostra tutto
Prezzo Prezzo
€ 89.000
Rata mutuo Rata mutuo
€ 422 / mese
Spese annue Spese annue
€ 0
Proponi il tuo prezzoProponi il tuo prezzo

Classe Energetica

G
G
G
G
G
G
G
G
G
EP globale non rinnovabile:
350.00 kW h/m² anno
EP globale rinnovabile:
0.00 kW h/m² anno
EP invernale del fabbricato:
EP estiva del fabbricato:
Anno di costruzione:
1960
Riscaldamento:
Autonomo
Tipo impianto:
A radiatori
Tipo alimentazione:
Metano

Ti interessa visionare l'immobile?

Fissa un appuntamento  Fissa un appuntamento

Richiedi informazioni

Clicca su Leggi per aprire l'informativa
* Questi campi sono obbligatori

Calcola il tuo mutuo

Semplice e senza impegno
Anticipo

( % )
Mutuo

( % )

pochi semplici passi

inserisci i tuoi dati
Questionario completato
Grazie per aver richiesto un appuntamento senza impegno con un nostro Consulente del Credito e Assicurativo.

Hai inserito correttamente tutti i dati necessari e a breve riceverai una e-mail con un link da convalidare per inviare i tuoi dati.
Affiliato
Casa In Colle Sas
Via Umberto I, 3 14022 Castelnuovo Don Bosco (AT)

Il nostro staff


  • Anna Carla Cantone
    Collaboratrice

  • Dario Gullace
    Affiliato

  • Viorica Negruser
    Coordinatrice

  • Aldo Furina
    Affiliato
Via Umberto I, 3 14022 Castelnuovo Don Bosco (AT)
Zona: Castelnuovo Don Bosco-Buttigliera D'Asti-Cocconato-Montiglio M.To-Montechiaro D'asti
Mostra su mappa
Affiliato
Casa In Colle Sas
Via Umberto I, 3 14022 Castelnuovo Don Bosco (AT)

2026 Tecnocasa Franchising S.p.A. - P. IVA 08365160152 - Via Monte Bianco 60/A 20089 Rozzano (MI). Ogni agenzia ha un proprio titolare ed è autonoma. Privacy policy | Policy utilizzo | Cookie policy