Casa semindipendente in vendita

Cossombrato, Via Piollo - Madonna D'Olmetto
€ 35.000
4 locali 4 locali
100 Mq 100 Mq
1 bagno 1 bagno

Casa semindipendente in vendita

Cossombrato, Via Piollo - Madonna D'Olmetto

Descrizione annuncio

A confine tra Cossombrato ed Asti, nella tranquilla località di Madonna d'Olmetto, è disponibile per la vendita una casa semindipendente di 100 mq.

Questa abitazione, porzione di cascina del 1930 e restaurata negli anni 90, si sviluppa su più livelli e offre spazi ben distribuiti.

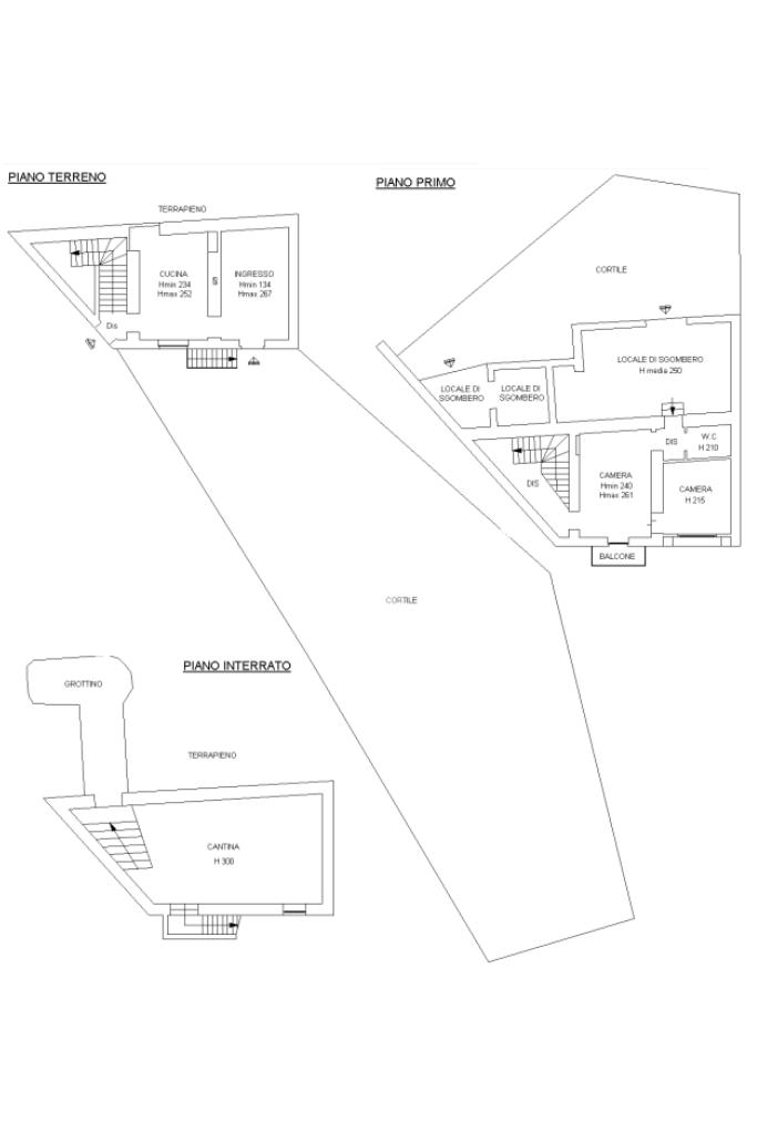
Il piano terra è composto da un giardino di 50 mq recintato sulla parte anteriore, da una cucina abitabile e da un salotto. La scala interna che accede al piano primo è in comune con la casa adiacente. Il piano superiore è composto da una prima camera grande, che disimpegna una seconda cameretta, un bagno cieco e un secondo locale di sgombero utilizzabile come cucina, sala o altra camera. Questo locale di sgombero ha un ulteriore accesso indipendente e altro giardino privato recintabile di 70 mq. E' inclusa una legnaia, due posti auto scoperti di fronte casa e un orto di 300 mq collinari.

Il riscaldamento è assente ma sono presenti sia stufa che camino a legna. Le rifiniture interne sono in discreto stato conservativo e il tetto è stato revisionato.

Questa casa è una soluzione abitativa che unisce il fascino del passato con le comodità moderne, in un contesto sereno e riservato.

Mostra tutto

Nelle vicinanze

Trasporto pubblico Trasporto pubblico
ex Stazione di Settime-Cinaglio-Mombarone
ex Stazione di Settime-Cinaglio-Mombarone
1,9 Km
Chiusano (Stazione)
Chiusano (Stazione)
560 m
Settime (Stazione)
Settime (Stazione)
1,9 Km
Farmacia Farmacia
Farmacia
1,8 Km
Negozi Negozi
Carrefour Express
2,4 Km
Negozio Villa
2,4 Km
Ristoranti Ristoranti
Ristorante Crociera
1,0 Km
Osteria Ai binari
1,9 Km
Mach Cha Dira
2,7 Km
Mostra tutto

Caratteristiche

Rif.:
61200096
Piano:
Su più livelli di 2
Totale piani:
2
Balconi:
1
Camere da letto:
2
Arredamento:
Assente
Mostra tutto
Prezzo Prezzo
€ 35.000
Rata mutuo Rata mutuo
€ 166 / mese
Spese annue Spese annue
€ 0
Proponi il tuo prezzoProponi il tuo prezzo

Classe Energetica

G
G
G
G
G
G
G
G
G
EP globale non rinnovabile:
208.75 kW h/m² anno
EP globale rinnovabile:
11.34 kW h/m² anno
EP invernale del fabbricato:
EP estiva del fabbricato:
Anno di costruzione:
1930
Riscaldamento:
Assente

Ti interessa visionare l'immobile?

Fissa un appuntamento  Fissa un appuntamento

Richiedi informazioni

Clicca su Leggi per aprire l'informativa
* Questi campi sono obbligatori

Calcola il tuo mutuo

Semplice e senza impegno
Anticipo

( % )
Mutuo

( % )

pochi semplici passi

inserisci i tuoi dati
Questionario completato
Grazie per aver richiesto un appuntamento senza impegno con un nostro Consulente del Credito e Assicurativo.

Hai inserito correttamente tutti i dati necessari e a breve riceverai una e-mail con un link da convalidare per inviare i tuoi dati.
Affiliato
Casa In Colle Sas
Via Umberto I, 3 14022 Castelnuovo Don Bosco (AT)

Il nostro staff


  • Anna Carla Cantone
    Collaboratrice

  • Dario Gullace
    Affiliato

  • Viorica Negruser
    Coordinatrice

  • Aldo Furina
    Affiliato
Via Umberto I, 3 14022 Castelnuovo Don Bosco (AT)
Zona: Castelnuovo Don Bosco-Buttigliera D'Asti-Cocconato-Montiglio M.To-Montechiaro D'asti
Mostra su mappa
Affiliato
Casa In Colle Sas
Via Umberto I, 3 14022 Castelnuovo Don Bosco (AT)

2026 Tecnocasa Franchising S.p.A. - P. IVA 08365160152 - Via Monte Bianco 60/A 20089 Rozzano (MI). Ogni agenzia ha un proprio titolare ed è autonoma. Privacy policy | Policy utilizzo | Cookie policy