Casa semindipendente in vendita

Cossombrato, Via alle scuole - Madonna D'Olmetto
€ 79.000
Prezzo aggiornato
4 locali 4 locali
130 Mq 130 Mq
1 bagno 1 bagno

Casa semindipendente in vendita

Cossombrato, Via alle scuole - Madonna D'Olmetto

Descrizione annuncio

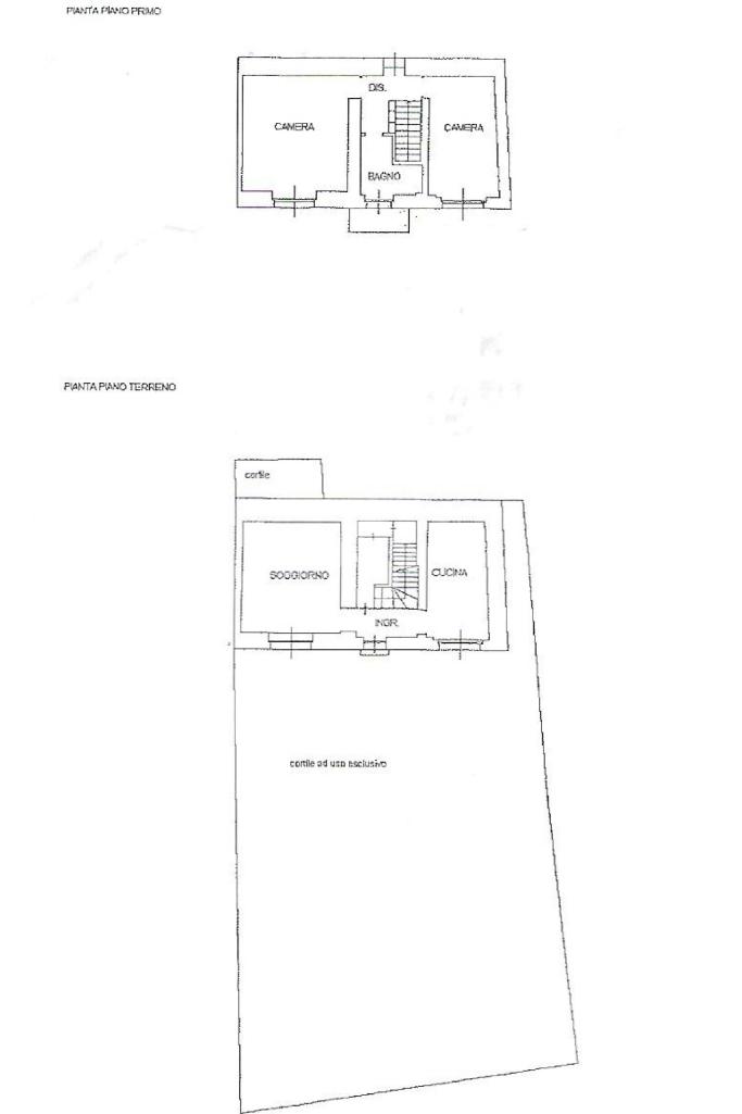
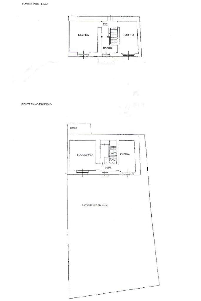
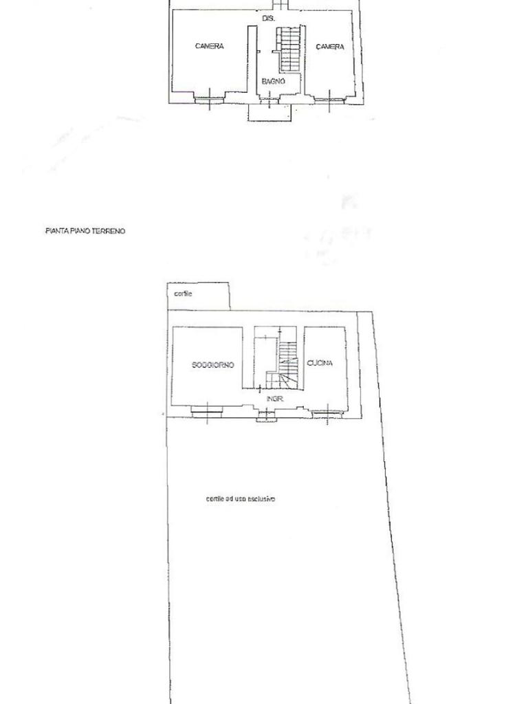
La casa, che si trova in frazione Madonna dell’Olmetto, è in posizione collinare e panoramica e comprende un giardino privato di circa 1.000 mq. Al piano terra sono presenti un ampio salone, una cucina abitabile e un comodo ripostiglio. La zona notte è al piano superiore, collegata dalla scala in muratura, e comprende due comode camere da letto e un bagno dotato di vasca. Al piano seminterrato vi è una cantina. L’immobile si presenta in buone condizioni ed è stato accuratamente ristrutturato il tetto e l’impianto elettrico. Gli infissi esterni sono in legno con doppio vetro. Il riscaldamento è a GPL.

Mostra tutto

Nelle vicinanze

Trasporto pubblico Trasporto pubblico
ex Stazione di Settime-Cinaglio-Mombarone
ex Stazione di Settime-Cinaglio-Mombarone
2,1 Km
San Carlo (P.za Verrua)
San Carlo (P.za Verrua)
1,5 Km
Chiusano (Stazione)
Chiusano (Stazione)
1,5 Km
Farmacia Farmacia
Farmacia
2,1 Km
Negozi Negozi
Negozio Villa
2,7 Km
Ristoranti Ristoranti
Ristorante Crociera
180 m
Osteria Ai binari
2,1 Km
Mostra tutto

Caratteristiche

Rif.:
61161450
Piano:
Su più livelli di 2
Totale piani:
2
Posti auto:
1
Balconi:
1
Camere da letto:
2
Mostra tutto
Prezzo Prezzo
€ 79.000
Rata mutuo Rata mutuo
€ 374 / mese
Spese annue Spese annue
€ 0
Proponi il tuo prezzoProponi il tuo prezzo

Classe Energetica

E
E
E
E
E
E
E
E
E
EP globale non rinnovabile:
133.62 kW h/m² anno
EP globale rinnovabile:
325.12 kW h/m² anno
EP invernale del fabbricato:
EP estiva del fabbricato:
Anno di costruzione:
1950
Riscaldamento:
Autonomo
Tipo impianto:
A radiatori
Tipo alimentazione:
GPL

Prezzo ridotto di €1 (12%%)

Ti interessa visionare l'immobile?

Fissa un appuntamento  Fissa un appuntamento

Richiedi informazioni

Clicca su Leggi per aprire l'informativa
* Questi campi sono obbligatori

Calcola il tuo mutuo

Semplice e senza impegno
Anticipo

( % )
Mutuo

( % )

pochi semplici passi

inserisci i tuoi dati
Questionario completato
Grazie per aver richiesto un appuntamento senza impegno con un nostro Consulente del Credito e Assicurativo.

Hai inserito correttamente tutti i dati necessari e a breve riceverai una e-mail con un link da convalidare per inviare i tuoi dati.
Affiliato
Casa In Colle Sas
Via Umberto I, 3 14022 Castelnuovo Don Bosco (AT)

Il nostro staff


  • Anna Carla Cantone
    Collaboratrice

  • Dario Gullace
    Affiliato

  • Viorica Negruser
    Coordinatrice

  • Aldo Furina
    Affiliato
Via Umberto I, 3 14022 Castelnuovo Don Bosco (AT)
Zona: Castelnuovo Don Bosco-Buttigliera D'Asti-Cocconato-Montiglio M.To-Montechiaro D'asti
Mostra su mappa
Affiliato
Casa In Colle Sas
Via Umberto I, 3 14022 Castelnuovo Don Bosco (AT)

2026 Tecnocasa Franchising S.p.A. - P. IVA 08365160152 - Via Monte Bianco 60/A 20089 Rozzano (MI). Ogni agenzia ha un proprio titolare ed è autonoma. Privacy policy | Policy utilizzo | Cookie policy