Casa semindipendente in vendita

Cocconato, Via Piave
€ 115.000
5 locali 5 locali
188 Mq 188 Mq
2 bagni 2 bagni

Casa semindipendente in vendita

Cocconato, Via Piave

Descrizione annuncio

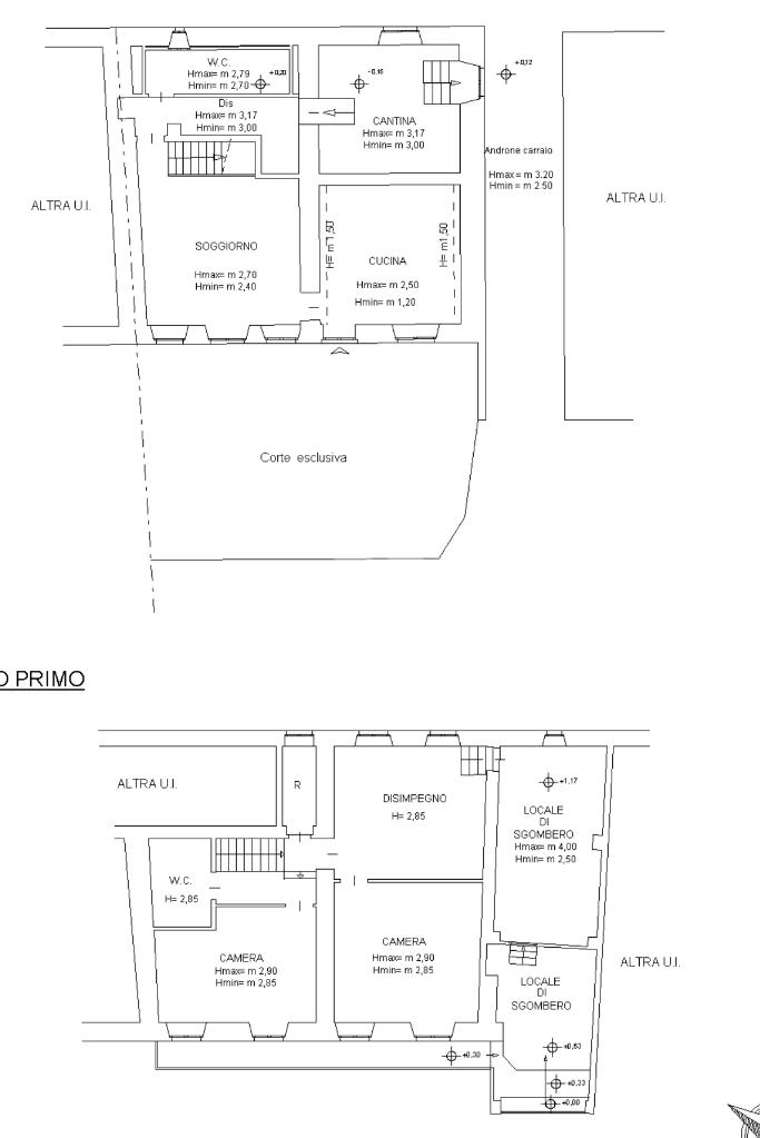
A Cocconato, in una zona tranquilla e ben esposta, proponiamo una casa semindipendente completamente ristrutturata nel 2012, ideale per chi cerca un’abitazione accogliente, funzionale e ricca di carattere.

All’esterno si trova un giardino privato di circa 70 mq, con accesso sia pedonale che carraio, un comodo posto auto, una tettoia coperta per pranzi all’aperto anche nelle giornate meno soleggiate e un forno a legna, perfetto per momenti conviviali.

L’ingresso è diretto sulla cucina abitabile, separata da un soggiorno spazioso che offre un ambiente rilassante e confortevole. Al piano terra sono presenti anche un bagno con vasca idromassaggio e una cantina ampia, utile come spazio di servizio o dispensa.

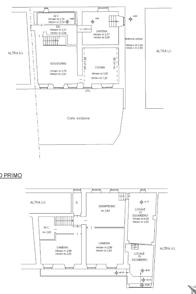
Al piano superiore, la disposizione consente la realizzazione di fino a tre camere da letto, di cui una con bagno privato completo di doccia. Presente anche un locale di sgombero, adatto come cabina armadio, studio o zona hobby. Completano il piano un balcone con affaccio sul cortile interno e un terrazzo coperto, ideale per un momento di relax all’aperto.

I serramenti sono in PVC con doppio vetro, completi di gelosie, zanzariere e inferriate al piano terra, per un perfetto equilibrio tra isolamento termico, comfort e sicurezza.

Il sistema di riscaldamento è a radiatori, alimentati da una caldaia collegata alla stufa a pellet, una soluzione efficiente che consente di ottimizzare i consumi mantenendo un ottimo comfort termico in tutta la casa.

L’intera abitazione è caratterizzata da un’atmosfera calda e accogliente, grazie ai numerosi richiami al mattone a vista, elemento distintivo della casa. Ogni ambiente è valorizzato dalla luce naturale, grazie a una favorevole esposizione che garantisce luminosità durante tutta la giornata.

Soluzione adatta sia come prima casa, sia come residenza secondaria, per chi desidera vivere in un contesto tranquillo ma già pronto e curato in ogni dettaglio.

Mostra tutto

Nelle vicinanze

Trasporto pubblico Trasporto pubblico
ex Stazione di Cocconato
ex Stazione di Cocconato
2,0 Km
Cocconato (Piazza Cavour 15)
Cocconato (Piazza Cavour 15)
260 m
Rocco (Tabiella)
Rocco (Tabiella)
1,8 Km
Ricariche auto elettriche Ricariche auto elettriche
Cocconato Giordano | EnelX
200 m
Cocconato Giachino 13 | EnelX
350 m
Cocconato Giachino 44 | EnelX
450 m
Scuole Scuole
Nen mac bosc
410 m
Farmacia Farmacia
Farmacia
310 m
Supermercati Supermercati
SMA
270 m
Supermercati
2,7 Km
Negozi Negozi
Negozi
300 m
Conbipel
1,7 Km
Ristoranti Ristoranti
Pizzeria SottoSopra
280 m
Cannon d'Oro
300 m
Locanda Martelletti
440 m
Cascina Rosengana
1,5 Km
Trattoria dei Cacciatori
2,7 Km
Mostra tutto

Caratteristiche

Rif.:
61126148
Piano:
Su più livelli di 2
Totale piani:
2
Posti auto:
1
Balconi:
2
Terrazzi:
1
Mostra tutto
Prezzo Prezzo
€ 115.000
Rata mutuo Rata mutuo
€ 530 / mese
Spese annue Spese annue
€ 0
Proponi il tuo prezzoProponi il tuo prezzo

Classe Energetica

D
D
D
D
D
D
D
D
D
EP globale non rinnovabile:
442.88 kW h/m² anno
EP globale rinnovabile:
15.62 kW h/m² anno
EP invernale del fabbricato:
EP estiva del fabbricato:
Anno di costruzione:
1930
Riscaldamento:
Autonomo
Tipo impianto:
A radiatori
Tipo alimentazione:
Altro

Ti interessa visionare l'immobile?

Fissa un appuntamento  Fissa un appuntamento

Richiedi informazioni

* Questi campi sono obbligatori

Calcola il tuo mutuo

Semplice e senza impegno
Anticipo

( % )
Mutuo

( % )

pochi semplici passi

inserisci i tuoi dati
Questionario completato
Grazie per aver richiesto un appuntamento senza impegno con un nostro Consulente del Credito e Assicurativo.

Hai inserito correttamente tutti i dati necessari e a breve riceverai una e-mail con un link da convalidare per inviare i tuoi dati.
Affiliato
Casa In Colle Sas
Via Umberto I, 3 14022 Castelnuovo Don Bosco (AT)

Il nostro staff


  • Dario Gullace
    Affiliato

  • Viorica Negruser
    Coordinatrice

  • Aldo Furina
    Affiliato
Via Umberto I, 3 14022 Castelnuovo Don Bosco (AT)
Zona: Castelnuovo Don Bosco-Buttigliera D'Asti-Cocconato-Montiglio M.To-Montechiaro D'asti
Mostra su mappa
Affiliato
Casa In Colle Sas
Via Umberto I, 3 14022 Castelnuovo Don Bosco (AT)

2025 Tecnocasa Franchising S.p.A. - P. IVA 08365160152 - Via Monte Bianco 60/A 20089 Rozzano (MI). Ogni agenzia ha un proprio titolare ed è autonoma. Privacy policy | Policy utilizzo | Cookie policy