Villa a schiera in vendita

Buttigliera D'Asti, Via XXIV Maggio
€ 239.000
3 locali 3 locali
160 Mq 160 Mq
1 bagno 1 bagno

Villa a schiera in vendita

Buttigliera D'Asti, Via XXIV Maggio

Descrizione annuncio

NUOVA COSTRUZIONE

Il prezzo si intende ultimato del piano terra, con la possibilità di personalizzarla. La villa si trova in centro Buttigliera d'Asti, in posizione comoda ai principali servizi e in direzione Chieri.

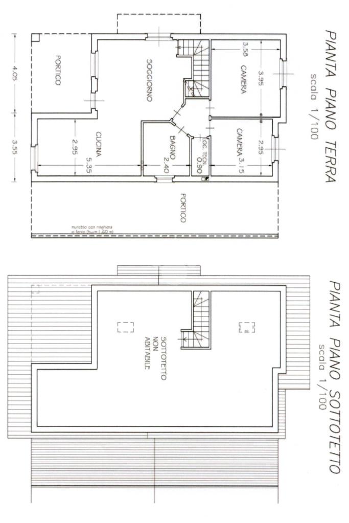
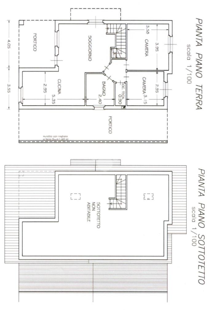
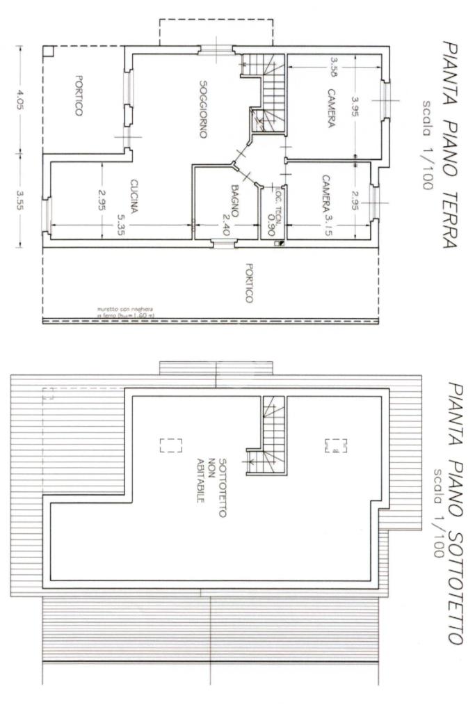
L'abitazione, contornata dal giardino privato e da un lungo porticato, è disposta su due livelli. Al piano terreno sono presenti il soggiorno con angolo cottura, due camere da letto e il bagno. Il piano primo mansardato, collegato dalla scala in muratura, è composto da due locali versatili.

La disposizione dei locali può essere modificata a seconda delle esigenze e le rifiniture sono a scelta dell'acquirente, che potrà consultare un vasto capitolato. Sono previsti impianti di ultima generazione con il riscaldamento autonomo a metano.

È possibile altresì acquistare la soluzione allo stato di fatto in cui si trova al prezzo di € 175.00 € oppure di ultimare anche il sottotetto aggiungendo un piccolo sovraprezzo.

Il presente annuncio ha valore puramente indicativo e non costituisce elemento contrattuale. Tutte le misure eventualmente riportate devono considerarsi indicative.

Nell'ottica di ampliamento delle nostre Agenzie, offriamo l'opportunità a giovani ragazzi neodiplomati e automuniti di avviarsi alla professione di Agente Immobiliare. Inviare il curriculum a: atha1

Mostra tutto

Nelle vicinanze

Trasporto pubblico Trasporto pubblico
Vigo
Vigo
2,5 Km
Scuole Scuole
Scuole
1,8 Km
Istituto professionale Pietro Andriano
1,8 Km
Scuola Media San Giuseppe Cafasso
2,7 Km
Scuola Materna Statale
2,8 Km
Scuola Elementare Statale San Giovanni Bosco
2,8 Km
Farmacia Farmacia
Farmacia
220 m
Supermercati Supermercati
Mercatino
210 m
simply
260 m
Supermercati
1,9 Km
Magnone
1,9 Km
Negozi Negozi
Abbigliamento per Bambini
230 m
Bar Bar
Vittorio Emanuele Bar
170 m
Ristoranti Ristoranti
S. Martino
300 m
Ristoranti
1,9 Km
Albergo Ristorante Ciocca
2,7 Km
Mostra tutto

Caratteristiche

Rif.:
61190477
Piano:
2 di 2 (Piano su più livelli)
Posti auto:
1
Camere da letto:
2
Arredamento:
Assente
Condizionamento:
Assente
Mostra tutto
Prezzo Prezzo
€ 239.000
Rata mutuo Rata mutuo
€ 1.133 / mese
Spese annue Spese annue
€ 0
Proponi il tuo prezzoProponi il tuo prezzo

Classe Energetica

Questo immobile è esente da classe energetica
Anno di costruzione:
2015
Riscaldamento:
Assente

Ti interessa visionare l'immobile?

Fissa un appuntamento  Fissa un appuntamento

Richiedi informazioni

Clicca su Leggi per aprire l'informativa
* Questi campi sono obbligatori

Calcola il tuo mutuo

Semplice e senza impegno
Anticipo

( % )
Mutuo

( % )

pochi semplici passi

inserisci i tuoi dati
Questionario completato
Grazie per aver richiesto un appuntamento senza impegno con un nostro Consulente del Credito e Assicurativo.

Hai inserito correttamente tutti i dati necessari e a breve riceverai una e-mail con un link da convalidare per inviare i tuoi dati.
Affiliato
Casa In Colle Sas
Via Umberto I, 3 14022 Castelnuovo Don Bosco (AT)

Il nostro staff


  • Anna Carla Cantone
    Collaboratrice

  • Dario Gullace
    Affiliato

  • Viorica Negruser
    Coordinatrice

  • Aldo Furina
    Affiliato
Via Umberto I, 3 14022 Castelnuovo Don Bosco (AT)
Zona: Castelnuovo Don Bosco-Buttigliera D'Asti-Cocconato-Montiglio M.To-Montechiaro D'asti
Mostra su mappa
Affiliato
Casa In Colle Sas
Via Umberto I, 3 14022 Castelnuovo Don Bosco (AT)

2026 Tecnocasa Franchising S.p.A. - P. IVA 08365160152 - Via Monte Bianco 60/A 20089 Rozzano (MI). Ogni agenzia ha un proprio titolare ed è autonoma. Privacy policy | Policy utilizzo | Cookie policy